CPR
apartment

Location: Milano, Italy
Client: Private
Status: Built – 2020, 2021
Type: Apartment renovation
Surface: 130 sqm
Design team: biroarchitetti 

Ph: Alberto Strada

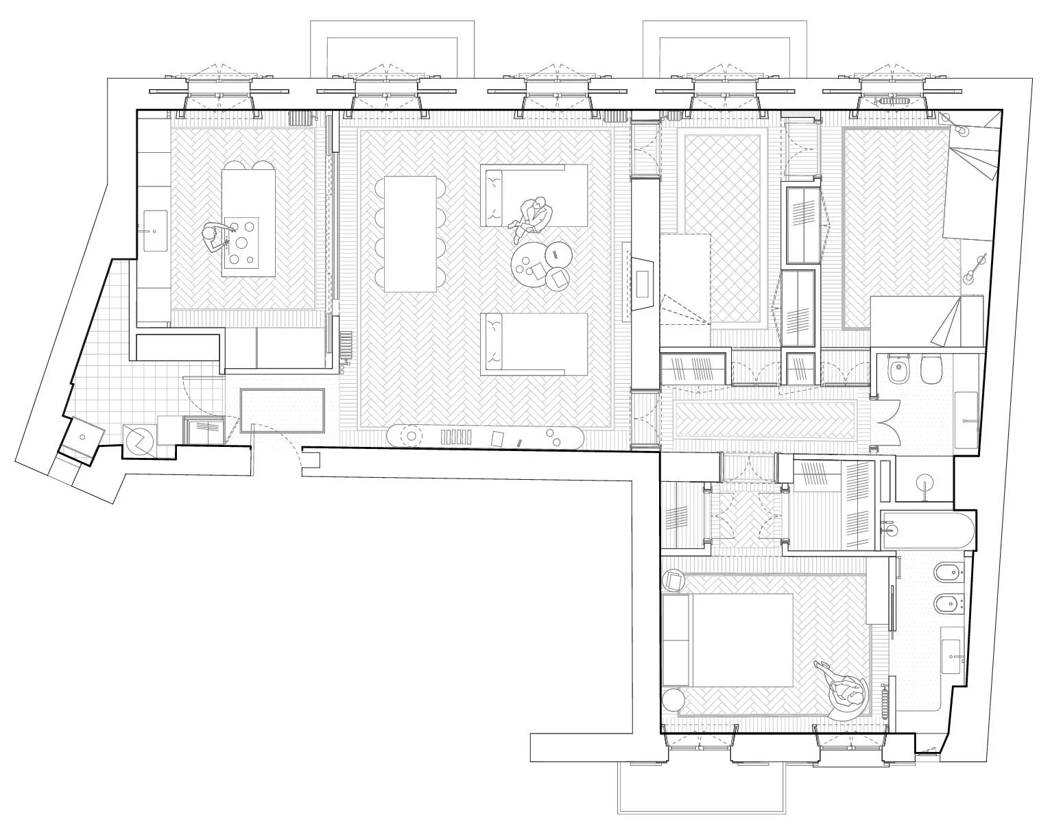
The CPR apartment project, located in the heart of Milan’s historic center, delicately weaves together respect for the past with a contemporary transformation of domestic spaces. The apartment retains valuable period features that have been carefully restored and enhanced, including decorative parquet flooring, double-leaf wooden doors with shaped surrounds, and external window frames in the traditional “Old Milan” style.

The design aims to emphasize and amplify the existing visual axes, opening up new perspectives through a carefully conceived system of doors that creates a harmonious sequence of interconnected spaces. The living area, the true heart of the home, is defined by the introduction of a new anthracite cast-iron fireplace, conceived as the symbolic focal point of domestic life. New ceiling stucco decorations reinterpret the original motifs, while a suspended light fixture—defined by a bronze circular ring that appears to float within the space—elegantly enhances the atmosphere.
The kitchen is conceived as a natural extension of the living area and can be separated by a refined sliding glass door system featuring fluted glass panels, bronze profiles, and custom-designed half-moon handles created specifically for the apartment. A distinctive element located between the entrance and the kitchen is a bronze “telescope,” which establishes a visual connection between the two spaces while allowing natural light to reach the entrance area, evoking a subtle nautical reference, akin to a porthole opening onto the exterior.
Along the corridor leading to the sleeping area, a large built-in wardrobe with boiserie discreetly conceals the doors to the children’s bedrooms, seamlessly combining functionality and aesthetics in a single architectural gesture. Color plays a fundamental role in defining the character of these spaces: the ceilings of the bedrooms in the night area are finished in carefully selected tones. Soft powder blue is used for the children’s rooms, while a deep sienna earth tone characterizes the master bedroom, which includes an en-suite bathroom, reinforcing the intimate and welcoming atmosphere of the interiors.

The finishes, the result of meticulous design research, combine the elegance of restoration with contemporary innovation. The original parquet floors have been preserved, while new terrazzo flooring—referencing Milanese tradition—has been introduced in the transformed areas. Terrazzo is also featured in the large central block of the kitchen island and in the top of the living room sideboard, distinguished by rounded corners and a refined pleated wood finish, custom-designed exclusively for the apartment, adding a touch of sophisticated modernity.

Previous
Previous

ARS apartment

Next
Next

DML apartment